Bourne House, 3D Laserscanning
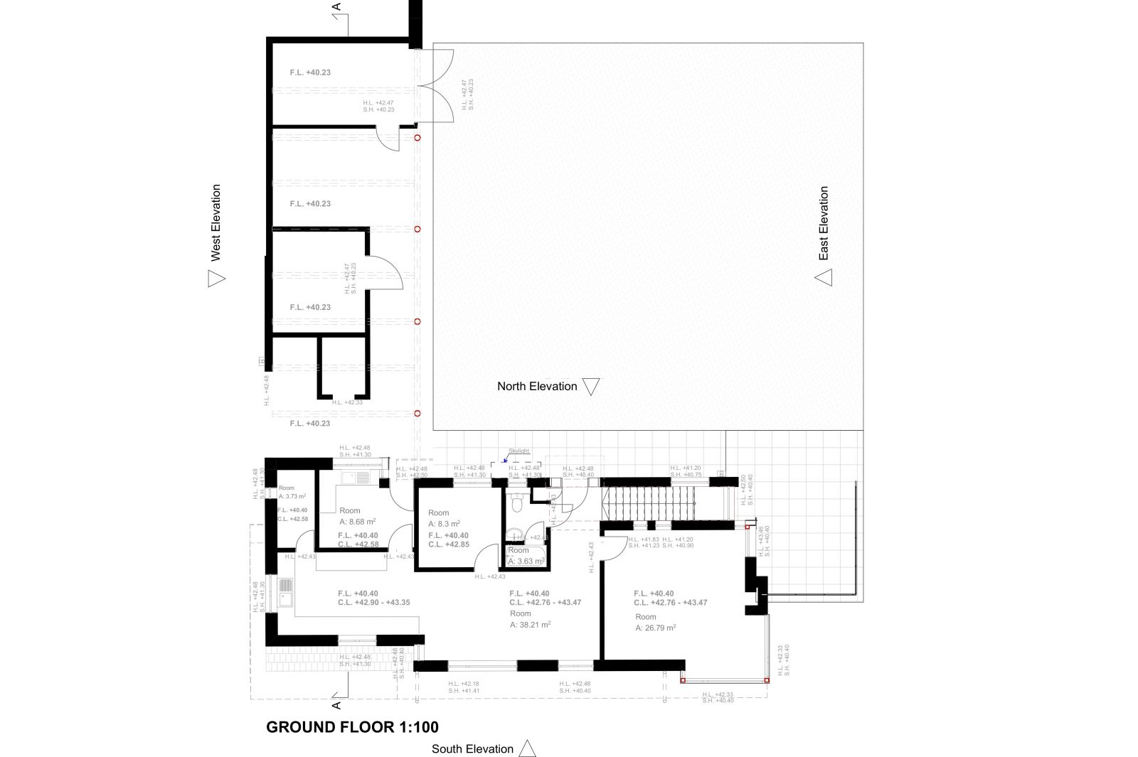
Nach einer 3D Scanning basierte Bestandsaufnahme wird eine Punktwolke gebildet. Auf dieser Grundlage wird ein 3D-Modell gebaut und die 2D Zeichnungen werden erstellt. Das erzeugte digital twin kann man für diverse Anwendungsfälle verwenden.
| Bauherrschaft: | Privat |
| Ort: | Wadesmill, Ware - GB |
| Zeitraum: | 2022 |
| Fläche: | 150 m2 |
| Bestandsaufnahme | |
Der erste Schritt war eine Bestansufnahme mittels eines 3D Scaner. Mit Hilfe eines spezielen Softwares wurde eine Punktwolke erfasst, die als Grundlage für das erzeugen des BIM-konformen 3D Modells diente. Einmal gebaut, kann man das 3D Modell für die weitere Erzeugung der 2D Zeichnungen verweden. Außerdem ist es möglich, dass man das sogenannte entstandene Digital Twin für unterschiedliche Anwendungsfälle, wie Visualisierungen, Wohnflächeberechnung, Facility Management etc. verwenden kann.













