Neubau Bibliothek, Stadt Heidenheim
Die Stadt Heidenheim braucht eine neue städtische Bibliothek in der Innenstadt. Diese neue kulturelle Einrichtung soll nicht nur als Ausleihe von Medien fungieren, sondern als Treffpunkt und Aufenthaltsort genutzt werden, in der die Bürger verweilen, kommunizieren und sich informieren können.
| Bauherrschaft: | Stadt Heidenheim |
| Ort: | Heidenheim |
| Zeitraum: | Projekt abgeschlossen |
| Fläche: | ca. 2.000 m2 |
| Wettbewerb | |
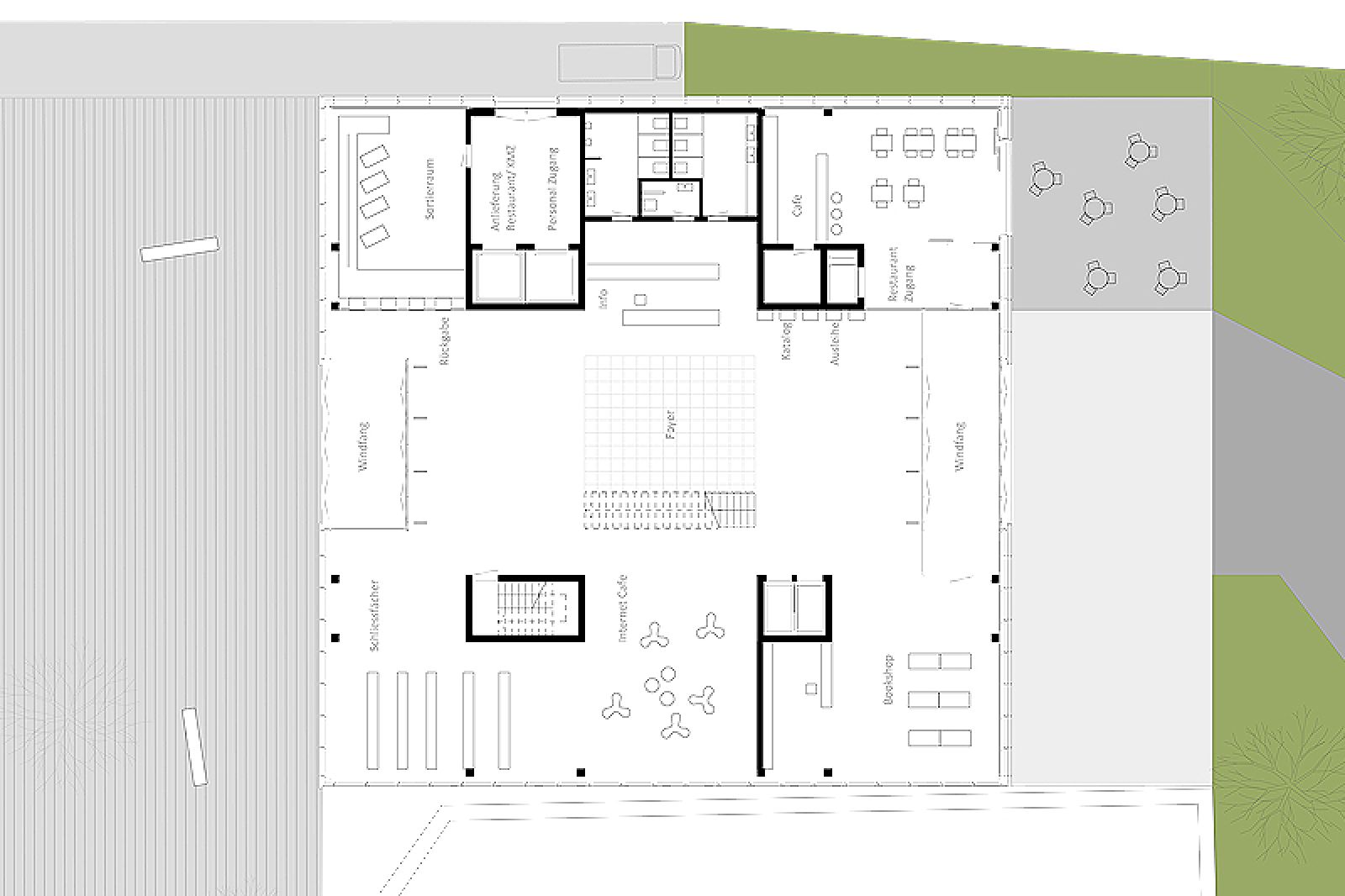
Die beiden Fußgängerachsen, die Ost-West-Achse und die Nord-Süd-Verbindung vom Hauptbahnhof zur Pauluskirche, werden durch die Bibliothek miteinander verbunden. In der unmittelbaren Nähe der Bibliothek entstehen zwei neue Plätze, die den Stadtraum aktivieren und die Verbindung zwischen den beiden Fußgängerachsen stärken. Die beiden Nord und Süd-Seiten des Gebäudes sollen zu öffentlichen Aufenthaltsorten werden und das Publikum in die Bibliothek einladen.
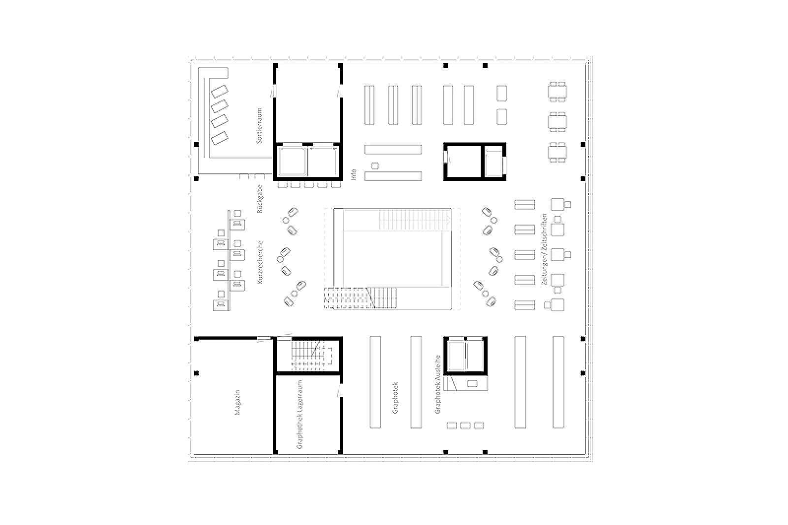
Im Inneren des Gebäudes gibt es einen einzigen, zusammenhängenden Innenraum, ein Raum-Kontinuum, mit verschiedenen Ebenen. Die ihre eigene Identität haben. Die Besucher können frei wählen, wo sie sich aufhalten und arbeiten möchten. Der zentrale Freiraum spiegelt diesen Prozess wider und als Erschließung verteilt die Menschen vertikal in das Gebäude.













