Stadtmuseum, Rapperswil-Jona
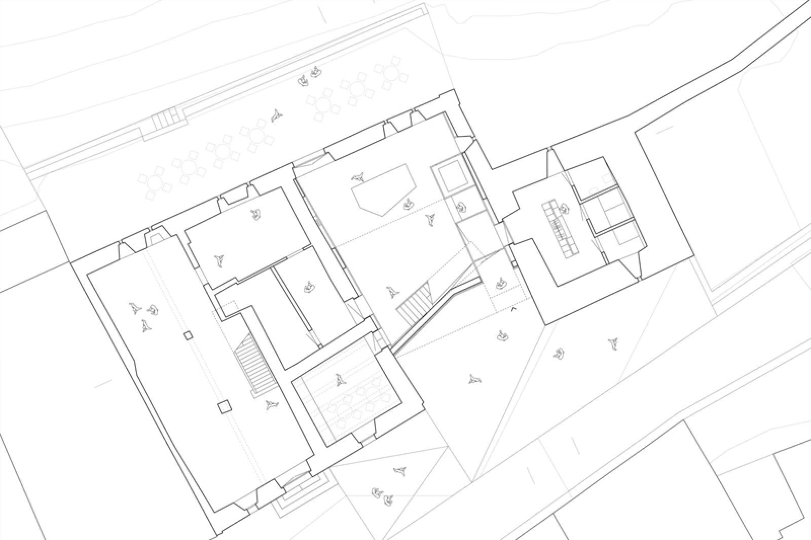
Das Statdmuseum der Stadt Rapperswil-Jona muss saniert werden und braucht eine neue Erschließung zwischen den beiden bestehenden Gebäudeteilen.
| Bauherrschaft: | Ortsgemeinde Rapperswil-Jona, CH-Rapperswil-Jona |
| Ort: | CH-Rapperswil-Jona |
| Zeitraum: | Projekt abgeschlossen |
| Fläche: | 990 m2 |
| Wettbewerb 1. Preis | |
Der Neubau leistet neben dem Eingang auch die Barrierefreiheit und bietet darüber hinaus, Ausstellungsflächen mit unterschiedlichen Eigenschaften. Als neuer Teil im Ensemble erfüllt „Janus“ alle haustechnischen und betrieblichen Anforderungen eines modernen, ganzjährigen Museumsbetriebs und gewährleistet so den Bestandsbauten eine Existenz als authentische Zeugen ihrer Zeit.
Durch die zenitale Beleuchtung und vertikale Durchlässigkeit des Neubaus wird ein räumlicher Gegensatz zu den Altbauten geschaffen. Das erleichtert die Orientierung innerhalb des Ensembles. Durch den starken Kontrast zwischen neu und alt, erlebt der Besucher die mittelalterlichen Gebäudeteile viel bewusster und ihr Betreten wird zur erlebnisreichen Reise in eine vergangene Zeit.
Bilder mit freundlicher Genehmigung von :mlzd, CH.










