Bourne House, 3D Laserscaning
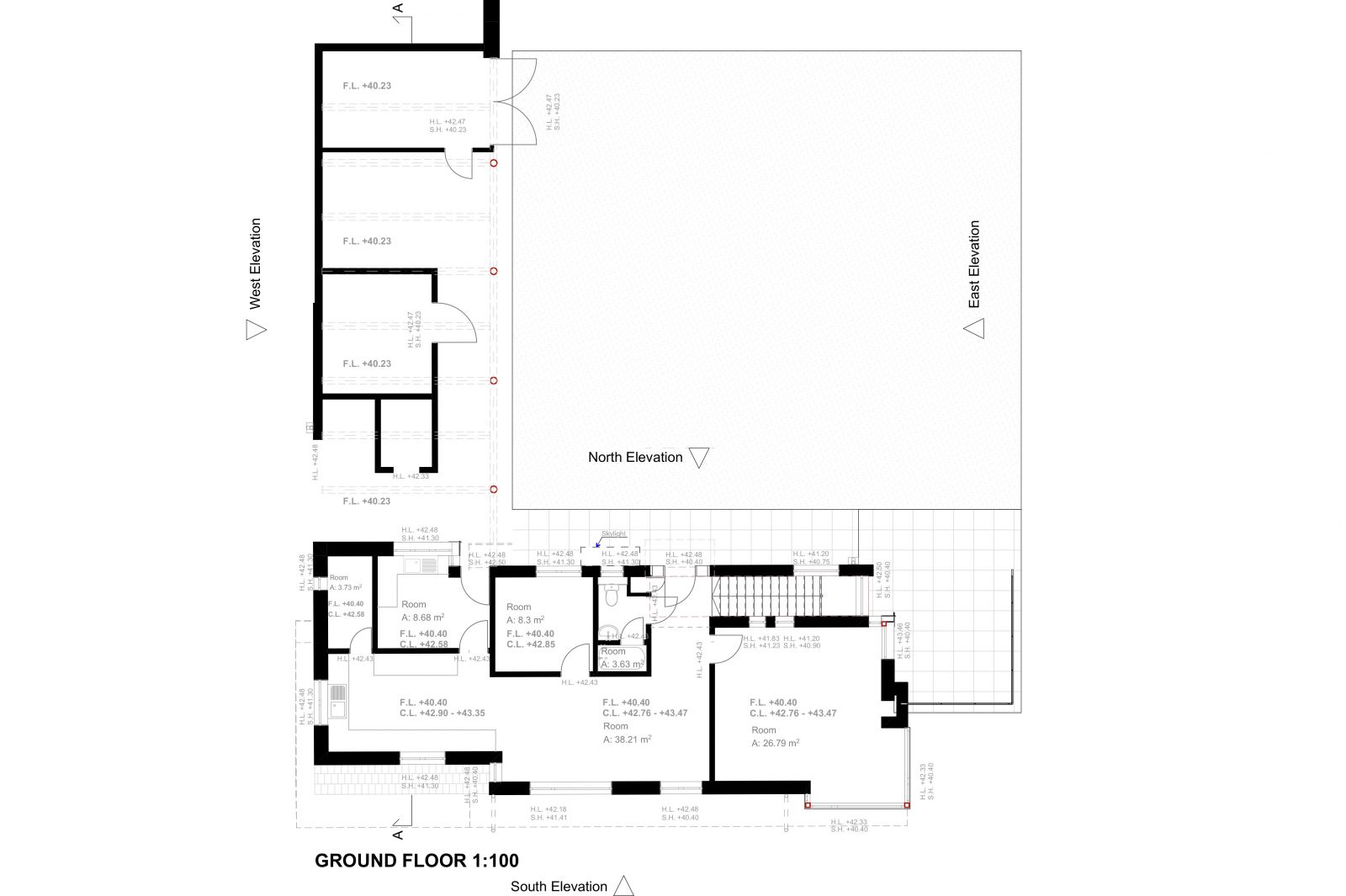
After a 3D scanning based survey, a point cloud is being generated. On this basis, a 3D model is built and the 2D drawings are created. The generated digital twin can be used for further various applications.
| Client: | Privat |
| Location: | Wadesmill, Ware - GB |
| Period: | 2022 |
| Area: | 150 m2 |
| Survey | |
The client wishes to renovate energetically and reconvert the building. In the future, the building should function as a smart home and it should be digitally controlled.
The first step was an survey using a 3D scanner. A point cloud was recorded with the help of a special software, which served as basis for building a BIM-compliant 3D model. Once built, the 3D model can be used to further planing and 2D drawings can be generated. In addition, it is possible that the so-called digital twin that has been created can be used for various applications, such as visualization, calculation of surfaces, facility management, etc.













