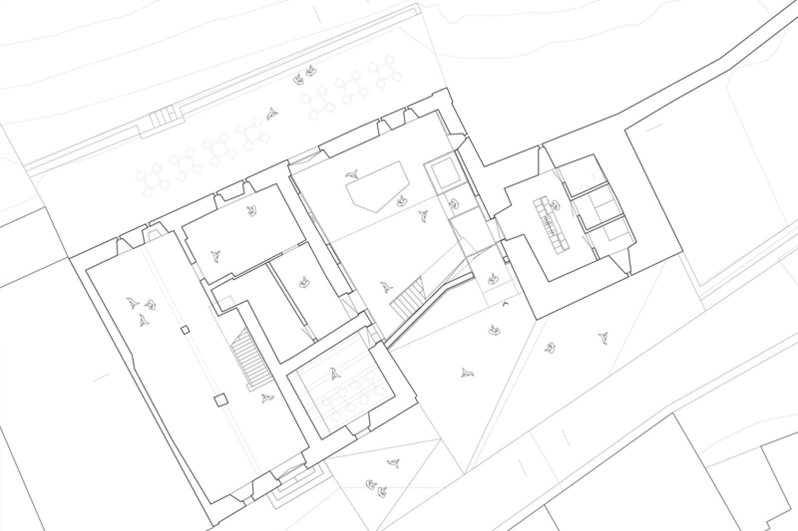
Restauration / New Building, Stadtmuseum Rapperswil-Jona
A modern building mediates between the medieval building parts of the former local museum, whose folded envelope is derived from the openings of the two adjacent existing buildings.
| Client: | Local Community Rapperswil-Jona, Switzerland |
| Location: | Rapperswil-Jona, Switzerland |
| Period: | Project completed |
| Area: | 990 m2 |
| Competition 1st Prize | |
Through the zenithally lighting and vertical permeability of the new building, the contrast inside the ensemble is deliberately large. This facilitates orientation within the ensemble on the one hand, and on the other hand, the recognizability of the new building makes the threshold to the old much more conscious - entering the existing buildings becomes an experience-rich journey into the past.
Copyright: :mlzd, CH










